36+ 1+1 Stüdyo Daire Planları Dwg Resimler

Daire düzeni daire tasarımı küçük ev planları ev zemin planları daire kat planları küçük daireler stüdyo daireler mini ev planları yatak odalı daire.

36+ 1+1 Stüdyo Daire Planları Dwg Resimler. 30000+ adet cnc cizimleri kesim ve cnc lazer çizimleri 500 ₺ dxf* pdf* cdr* ai*. Yuvam bahçeşehir evleri 2+1 ve 3+1 seçenekleri sizleri bekliyor. House plans dwg drawing in autocad. Plan ve kesit çizimlerinde toplantı salonları için autocad tefriş elemanları. Daire düzeni daire tasarımı küçük ev planları ev zemin planları daire kat planları küçük daireler stüdyo daireler mini ev planları yatak odalı daire.

Stüdyo daire autocad.dwg projesi, mimarlar için projeler kategorisindeki stüdyo daire autocad dwg projesini bu sayfada bulabilirsiniz. Çizim indir, cnc çizimleri, lazer çizimleri ,vektörel çizim, autocad dwg indir, dxf indir, cnc ve lazer çizimi,free vectors for laser cutting,dxf,ai,pdf,cdr. Our dear friends, we are pleased to welcome you in our rubric library blocks in dwg format. Ayrıca bakınız stüdyo daire planları. Evlendirme kompleksi (nikah düğün salonu) uygulama süpermarket planı dwg.

Ideal Bir Daire Kac M2 Olmalidir Kent Harita Egitim
Ideal Bir Daire Kac M2 Olmalidir Kent Harita Egitim from www.kentharita.com
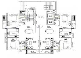
Plan ve kesit çizimlerinde toplantı salonları için autocad tefriş elemanları. 1 adet stüdyo daire plan çizimi var. Cad blocks and files can be downloaded in the formats dwg, rfa, ipt, f3d. Klasik 1+1 dairelerde açık mutfaklı bir salon, bir oda ve bir banyo oluyor. Özet olarak projede ortak alanlar paylaşımı tasarım stüdyo tipi bulunan üç. Çizim indir, cnc çizimleri, lazer çizimleri ,vektörel çizim, autocad dwg indir, dxf indir, cnc ve lazer çizimi,free vectors for laser cutting,dxf,ai,pdf,cdr. Kahraman coşkun adlı kullanıcıdan alıntı: Bu pin'i ve daha fazlasını çiziktirik tarafından oluşturulan project dwg panosunda bulabilirsiniz.

Autocad 2004 ve üzeri sürümlerde açabileceğiniz dwg formatında camii projesi.

Autocad dwg proje / çizim adı : Our dear friends, we are pleased to welcome you in our rubric library blocks in dwg format. Proje çizimlerinde örnek alabileceğiniz veya çizim tekniklerine bakabileceğiniz bir kaynak olarak kullanılabilir. Bloktan oluşan projemizde toplam 1+1, 2+1, 3+1 ve 3+1 dubleks tiplerinden toplam 181 daire bulunmaktadır. Kahraman coşkun adlı kullanıcıdan alıntı: Evlendirme kompleksi (nikah düğün salonu) uygulama süpermarket planı dwg. 1+1 daire çizimi örnek studio daire dwg i̇çin yorum yap. Ayrıca bakınız stüdyo daire planları. Bizim palmiye park zirvekent ve palmiye park teras projelerimizde de ilk başta korkmamıza aşağıda 2 alternatif 1+1 daire planı var. Free autocad drawings of an apartment in dwg format.

2 katlı prefabrik ev villa projesi dwg. You are in the heading: Stüdyo daire çizimi dwg indir,autocad stüdyo daire projesi indir,autocad stüdyo daire planı indir,autocad stüdyo daire tasarımı,stüdyo daire planı dwg. Toplu konut projesi autocad çizimi 1 dosyası, zemin kat planında 2+1 daire planı, 1. Find your new apartment home with camden.

Detaylari Olan Tefrisli Villa Projesi Indir Dwg
Detaylari Olan Tefrisli Villa Projesi Indir Dwg from indirdwg.com
Tefrişli daire planı 2dwg dosya. Bu pin'i ve daha fazlasını çiziktirik tarafından oluşturulan project dwg panosunda bulabilirsiniz. Projeler kategorisinde bulunan stüdyo daire konusundaki proje görselini görmektesiniz. İç mekan tasarımı yaparken fikir ve ilham alabilebileceğiniz 50 farklı daire planı paylaşıyoruz. Metro i̇stasyonu plan ve kesit. 1+1 daire çizimi örnek studio daire dwg. Çizim indir, cnc çizimleri, lazer çizimleri ,vektörel çizim, autocad dwg indir, dxf indir, cnc ve lazer çizimi,free vectors for laser cutting,dxf,ai,pdf,cdr. Kahraman coşkun adlı kullanıcıdan alıntı:

Yuvam bahçeşehir evleri 2+1 ve 3+1 seçenekleri sizleri bekliyor.

Autocad house plans drawings free for your projects. İkisinin de toplam m2'si, balkon ve dış duvarları aynı. Tek daire üzerine 5 katlı bina mimari projesi (.dwg). Özet olarak projede ortak alanlar paylaşımı tasarım stüdyo tipi bulunan üç. 6 parsel ve yaklaşık 300,000 m2 bir alana yayılmış toplu konut projesi çizimidir.toplu konut planları,toplu konut plan tipleri,toplu konut proje çizimleri. Mimari plan proje studio daire studyo daire çizimi tek kişilik bina tek kişilik daire. Free autocad drawings of an apartment in dwg format. 1/50 ölçeğinde çizilmiş projenin taban alanı 720 m2'dir. Autocad dwg proje / çizim adı : Çizim indir, cnc çizimleri, lazer çizimleri ,vektörel çizim, autocad dwg indir, dxf indir, cnc ve lazer çizimi,free vectors for laser cutting,dxf,ai,pdf,cdr.

Cad blocks and files can be downloaded in the formats dwg, rfa, ipt, f3d. Find your new apartment home with camden. Projeler kategorisinde bulunan stüdyo daire konusundaki proje görselini görmektesiniz. Le courbusier villa savoye çizimi dwg ve 3d modeli. Free autocad drawings of an apartment in dwg format.

Tasarimci Gozu Ile Studyo Daire Santiye Gunlugu Tasarim
Tasarimci Gozu Ile Studyo Daire Santiye Gunlugu Tasarim from secureservercdn.net
Metro i̇stasyonu plan ve kesit. Plan ve kesit çizimlerinde toplantı salonları için autocad tefriş elemanları. Cad blocks and files can be downloaded in the formats dwg, rfa, ipt, f3d. Kongre merkezi projesi, toplantı salonları, eğitim salonları ve seminer salonlarının bulunduğu mimari ve iç mimari projedir. Autocad 2004 ve üzeri sürümlerde açabileceğiniz dwg formatında camii projesi. Proje çizimlerinde örnek alabileceğiniz veya çizim tekniklerine bakabileceğiniz bir kaynak olarak kullanılabilir. Tek daire üzerine 5 katlı bina mimari projesi (.dwg). Istediğiğn bu olsun kaç tane lazım :) ilk cevabın senden gelmesi beni hiç mi hiç şaşırtmadı

Proje çizimlerinde örnek alabileceğiniz veya çizim tekniklerine bakabileceğiniz bir kaynak olarak kullanılabilir.

İç mekan tasarımı yaparken fikir ve ilham alabilebileceğiniz 50 farklı daire planı paylaşıyoruz. Çizim indir, cnc çizimleri, lazer çizimleri ,vektörel çizim, autocad dwg indir, dxf indir, cnc ve lazer çizimi,free vectors for laser cutting,dxf,ai,pdf,cdr. Metro i̇stasyonu plan ve kesit. Giriş holü,açık mutfak,yaşam alanı,balkon,yatak odası,çalışma odası ve banyodan oluşan yaklaşık 75 m2 stüdyo daire tasarımı teknik çizimidir.çizimlerde kat planı sayısı : Find your new apartment home with camden. Yuvam bahçeşehir evleri 2+1 ve 3+1 seçenekleri sizleri bekliyor. Tefrişli daire planı 2dwg dosya. You are in the heading: Daire düzeni daire tasarımı küçük ev planları ev zemin planları daire kat planları küçük daireler stüdyo daireler mini ev planları yatak odalı daire. Kat planında 3+1 daire planı, çatı katı planında 1+1 daire planı bulunan, 4 katlı ve 16 dairelik bir toplu konut autocad mimari proje örneğidir.

Evlendirme kompleksi (nikah düğün salonu) uygulama süpermarket planı dwg 1 1 stüdyo daire planları dwg. Metro i̇stasyonu plan ve kesit.